丸の内和波
レイアウトしやすい貸室で、官公庁にも近く初期費用も抑えられる為、士業の独立にお勧めなビルです。
- 物件ID085019
- お気に入り
物件詳細
| 所在地 | 愛知県名古屋市中区丸の内2-3-23 | 最寄り駅 |
|
|---|---|---|---|
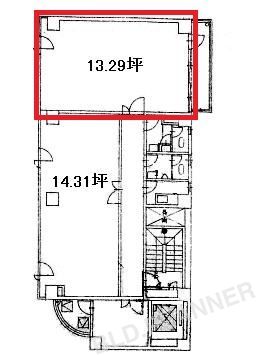
| 階/号室 | 4階/西 | 竣工 | 1991年03月 |
| 面積 | 13.29坪 | 保証金/敷金 | 637,920円(6ヶ月 ) |
| 賃料 | 116,952円(8,800円/坪) | 共益費 | 29,238円(2,200円/坪) |
| 礼金 | なし | 償却 | 0-2 30%、2- 0% |
| 入居 | 即入居 | 設備 | 個別空調 EV セキュリティ |
| 所在地 | 愛知県名古屋市中区丸の内2-3-23 |
|---|---|
| 最寄り駅 |
|
| 階/号室 | 4階/西 |
| 竣工 | 1991年03月 |
| 面積 | 13.29坪 |
| 保証金/敷金 | 637,920円(6ヶ月 ) |
| 賃料 | 116,952円(8,800円/坪) |
| 共益費 | 29,238円(2,200円/坪) |
| 礼金 | なし |
| 償却 | 0-2 30%、2- 0% |
| 入居 | 即入居 |
| 設備 | 個別空調 EV セキュリティ |
(2025年10月06日時点の情報です)
- 内観図、設備等は現状優先となります。
- 賃貸条件の詳細は重要事項説明書をもってご説明致します。
- 物件によっては別途費用がかかる場合がございます。
- ご紹介致しました物件にて契約が成立した場合、仲介手数料として賃料の1ヶ月分を申し受けます。
この物件についてお問い合わせ
メールでのお問い合わせ
このページは確認画面です。
内容をご確認のうえ、「送信する」ボタンを押してください。
- お問い合わせありがとうございました。
-
ご入力いただいたメールアドレスに、自動送信メールをお送りいたしましたのでご確認ください。
もし自動送信メールが届いていない場合は、何らかの不具合の可能性がございます。
大変お手数ですが、お電話にてご連絡ください。
株式会社ビルプランナー
【本社】
〒460-0002 名古屋市中区丸の内2丁目18番14号
TEL:052-218-4555 FAX:052-218-4556
- 似た条件の人気物件
-
-
- 名古屋御園
- 伏見駅 徒歩5分
107.95坪
相談
-
- TOSHIN広小路本町(旧TF広小路本町)
- 伏見駅 徒歩5分
43.61坪
527,681円
(12,100円/坪)
-
- DOMUS21
- 栄町駅 徒歩6分
10.10坪
82,500円
(8,168円/坪)
-
- 広小路YMD
- 伏見駅 徒歩2分
46.29坪
相談
-






















