ダイセン
この物件ページを、47人の人が閲覧してます。
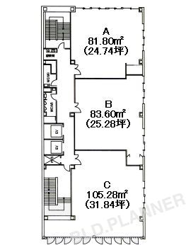
レイアウトしやすい正方形の貸室で、白と黒を基調とした外観は落ち着いた雰囲気を醸し出しています。
- 物件ID074187
- お気に入り
空室情報
| 物件ID | 階/号室 | 坪数 | 保証金/敷金 | 償却 | 賃料 | 共益費 | 入居 |
|---|---|---|---|---|---|---|---|
| 074187 | 2階/*A | 23.72坪 | 3,415,680円(12ヶ月 ) | 0% | 313,104円(13,200円/坪) | 込 | 相談 |
| 169469 | 5階 | 39.94坪 | 5,751,360円(12ヶ月 ) | 0% | 527,208円(13,200円/坪) | 込 | 即入居 |
| 物件ID | 074187 |
|---|---|
| 坪数 | 23.72坪 |
| 保証金/敷金 | 3,415,680円(12ヶ月 ) |
| 償却 | 0% |
| 共益費 | 込 |
| 賃料 | 313,104円(13,200円/坪) |
| 入居 | 相談 |
| 物件ID | 169469 |
|---|---|
| 坪数 | 39.94坪 |
| 保証金/敷金 | 5,751,360円(12ヶ月 ) |
| 償却 | 0% |
| 共益費 | 込 |
| 賃料 | 527,208円(13,200円/坪) |
| 入居 | 即入居 |
物件詳細
| 所在地 | 愛知県名古屋市中区丸の内3-9-29 | 最寄り駅 |
|
|---|---|---|---|
| 階/号室 | 2階/*A | 竣工 | 1990年09月 |
| 面積 | 23.72坪 | 保証金/敷金 | 3,415,680円(12ヶ月 ) |
| 賃料 | 313,104円(13,200円/坪) | 共益費 | 込 |
| 礼金 | なし | 償却 | 0% |
| 入居 | 相談 | 設備 | 個別空調 EV OA セキュリティ |
| 所在地 | 愛知県名古屋市中区丸の内3-9-29 |
|---|---|
| 最寄り駅 |
|
| 階/号室 | 2階/*A |
| 竣工 | 1990年09月 |
| 面積 | 23.72坪 |
| 保証金/敷金 | 3,415,680円(12ヶ月 ) |
| 賃料 | 313,104円(13,200円/坪) |
| 共益費 | 込 |
| 礼金 | なし |
| 償却 | 0% |
| 入居 | 相談 |
| 設備 | 個別空調 EV OA セキュリティ |
(2026年05月12日時点の情報です)
- 内観図、設備等は現状優先となります。
- 賃貸条件の詳細は重要事項説明書をもってご説明致します。
- 物件によっては別途費用がかかる場合がございます。
- ご紹介致しました物件にて契約が成立した場合、仲介手数料として賃料の1ヶ月分を申し受けます。
この物件についてお問い合わせ
メールでのお問い合わせ
このページは確認画面です。
内容をご確認のうえ、「送信する」ボタンを押してください。
- お問い合わせありがとうございました。
-
ご入力いただいたメールアドレスに、自動送信メールをお送りいたしましたのでご確認ください。
もし自動送信メールが届いていない場合は、何らかの不具合の可能性がございます。
大変お手数ですが、お電話にてご連絡ください。
株式会社ビルプランナー
【本社】
〒460-0002 名古屋市中区丸の内2丁目18番14号
TEL:052-218-4555 FAX:052-218-4556




















