アクセス丸の内
この物件ページを、91人の人が閲覧してます。
丸の内エリア。落ち着いた雰囲気の周辺環境。官庁近く、士業等におすすめのオフィスビル。
- 物件ID069103
- お気に入り
空室情報
| 物件ID | 階/号室 | 坪数 | 保証金/敷金 | 償却 | 賃料 | 共益費 | 入居 |
|---|---|---|---|---|---|---|---|
| 170980 | 8階/1フロア | 59.13坪 | 5,203,440円(8ヶ月 ) | 30% | 650,430円(11,000円/坪) | 195,129円(3,300円/坪) | 2026年05月~ |
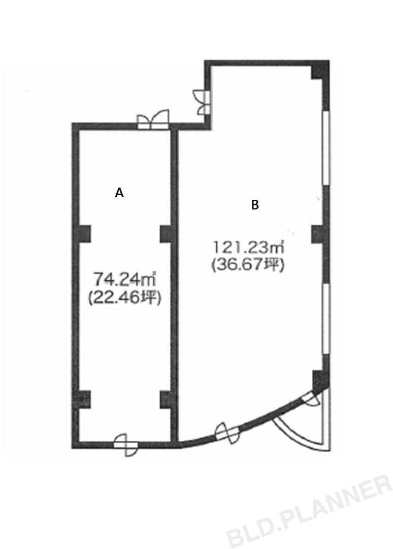
| 069103 | 8階/A | 22.46坪 | 1,796,800円(8ヶ月 ) | 30% | 247,060円(11,000円/坪) | 74,118円(3,300円/坪) | 2026年05月~ |
| 008556 | 8階/B | 36.67坪 | 2,933,600円(8ヶ月 ) | 30% | 403,370円(11,000円/坪) | 121,011円(3,300円/坪) | 2026年05月~ |
| 物件ID | 170980 |
|---|---|
| 坪数 | 59.13坪 |
| 保証金/敷金 | 5,203,440円(8ヶ月 ) |
| 償却 | 30% |
| 共益費 | 195,129円(3,300円/坪) |
| 賃料 | 650,430円(11,000円/坪) |
| 入居 | 2026年05月~ |
| 物件ID | 069103 |
|---|---|
| 坪数 | 22.46坪 |
| 保証金/敷金 | 1,796,800円(8ヶ月 ) |
| 償却 | 30% |
| 共益費 | 74,118円(3,300円/坪) |
| 賃料 | 247,060円(11,000円/坪) |
| 入居 | 2026年05月~ |
| 物件ID | 008556 |
|---|---|
| 坪数 | 36.67坪 |
| 保証金/敷金 | 2,933,600円(8ヶ月 ) |
| 償却 | 30% |
| 共益費 | 121,011円(3,300円/坪) |
| 賃料 | 403,370円(11,000円/坪) |
| 入居 | 2026年05月~ |
物件詳細
| 所在地 | 愛知県名古屋市中区丸の内2-6-21 | 最寄り駅 |
|
|---|---|---|---|
| 階/号室 | 8階/A | 竣工 | 1992年03月 |
| 面積 | 22.46坪 | 保証金/敷金 | 1,796,800円(8ヶ月 ) |
| 賃料 | 247,060円(11,000円/坪) | 共益費 | 74,118円(3,300円/坪) |
| 礼金 | なし | 償却 | 30% |
| 入居 | 2026年05月~ | 設備 | 個別空調 EV OA |
| 所在地 | 愛知県名古屋市中区丸の内2-6-21 |
|---|---|
| 最寄り駅 |
|
| 階/号室 | 8階/A |
| 竣工 | 1992年03月 |
| 面積 | 22.46坪 |
| 保証金/敷金 | 1,796,800円(8ヶ月 ) |
| 賃料 | 247,060円(11,000円/坪) |
| 共益費 | 74,118円(3,300円/坪) |
| 礼金 | なし |
| 償却 | 30% |
| 入居 | 2026年05月~ |
| 設備 | 個別空調 EV OA |
(2026年04月02日時点の情報です)
- 内観図、設備等は現状優先となります。
- 賃貸条件の詳細は重要事項説明書をもってご説明致します。
- 物件によっては別途費用がかかる場合がございます。
- ご紹介致しました物件にて契約が成立した場合、仲介手数料として賃料の1ヶ月分を申し受けます。
この物件についてお問い合わせ
メールでのお問い合わせ
このページは確認画面です。
内容をご確認のうえ、「送信する」ボタンを押してください。
- お問い合わせありがとうございました。
-
ご入力いただいたメールアドレスに、自動送信メールをお送りいたしましたのでご確認ください。
もし自動送信メールが届いていない場合は、何らかの不具合の可能性がございます。
大変お手数ですが、お電話にてご連絡ください。
株式会社ビルプランナー
【本社】
〒460-0002 名古屋市中区丸の内2丁目18番14号
TEL:052-218-4555 FAX:052-218-4556




















