丸の内3丁目貸事務所
この物件ページを、95人の人が閲覧してます。
- 物件ID170973
- お気に入り
空室情報
| 物件ID | 階/号室 | 坪数 | 保証金/敷金 | 償却 | 賃料 | 共益費 | 入居 |
|---|---|---|---|---|---|---|---|
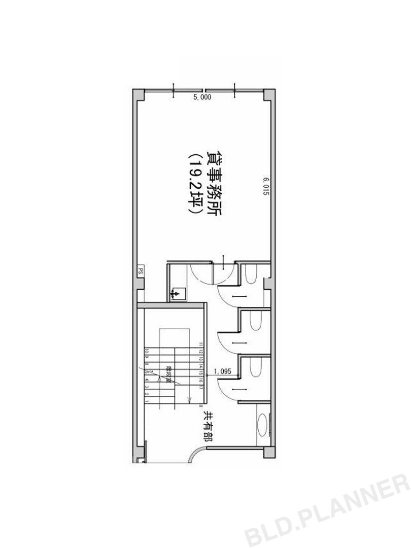
| 170973 | 2階 | 19.20坪 | 460,000円(2ヶ月 ) | 50% | 253,000円(13,178円/坪) | 20,000円(1,042円/坪) | 相談 |
| 170974 | 3階 | 22.90坪 | 500,000円(2ヶ月 ) | 50% | 275,000円(12,009円/坪) | 20,000円(873円/坪) | 相談 |
| 物件ID | 170973 |
|---|---|
| 坪数 | 19.20坪 |
| 保証金/敷金 | 460,000円(2ヶ月 ) |
| 償却 | 50% |
| 共益費 | 20,000円(1,042円/坪) |
| 賃料 | 253,000円(13,178円/坪) |
| 入居 | 相談 |
| 物件ID | 170974 |
|---|---|
| 坪数 | 22.90坪 |
| 保証金/敷金 | 500,000円(2ヶ月 ) |
| 償却 | 50% |
| 共益費 | 20,000円(873円/坪) |
| 賃料 | 275,000円(12,009円/坪) |
| 入居 | 相談 |
物件詳細
| 所在地 | 愛知県名古屋市中区丸の内3-10-13 | 最寄り駅 |
|
|---|---|---|---|
| 階/号室 | 2階 | 竣工 | 1984年04月 |
| 面積 | 19.20坪 | 保証金/敷金 | 460,000円(2ヶ月 ) |
| 賃料 | 253,000円(13,178円/坪) | 共益費 | 20,000円(1,042円/坪) |
| 礼金 | なし | 償却 | 50% |
| 入居 | 相談 | 設備 |
| 所在地 | 愛知県名古屋市中区丸の内3-10-13 |
|---|---|
| 最寄り駅 |
|
| 階/号室 | 2階 |
| 竣工 | 1984年04月 |
| 面積 | 19.20坪 |
| 保証金/敷金 | 460,000円(2ヶ月 ) |
| 賃料 | 253,000円(13,178円/坪) |
| 共益費 | 20,000円(1,042円/坪) |
| 礼金 | なし |
| 償却 | 50% |
| 入居 | 相談 |
| 設備 |
(2026年02月27日時点の情報です)
- 内観図、設備等は現状優先となります。
- 賃貸条件の詳細は重要事項説明書をもってご説明致します。
- 物件によっては別途費用がかかる場合がございます。
- ご紹介致しました物件にて契約が成立した場合、仲介手数料として賃料の1ヶ月分を申し受けます。
この物件についてお問い合わせ
メールでのお問い合わせ
このページは確認画面です。
内容をご確認のうえ、「送信する」ボタンを押してください。
- お問い合わせありがとうございました。
-
ご入力いただいたメールアドレスに、自動送信メールをお送りいたしましたのでご確認ください。
もし自動送信メールが届いていない場合は、何らかの不具合の可能性がございます。
大変お手数ですが、お電話にてご連絡ください。
株式会社ビルプランナー
【本社】
〒460-0002 名古屋市中区丸の内2丁目18番14号
TEL:052-218-4555 FAX:052-218-4556
- 似た条件の人気物件
-
-
- 中央広小路
- 栄駅 徒歩6分
17.84坪
284,548円
(15,950円/坪)
-
- 平和不動産名古屋伏見(旧大永)
- 伏見駅 徒歩2分
21.22坪
455,169円
(21,450円/坪)
-
- ハートヒルズ丸の内
- 丸の内駅 徒歩6分
21.03坪
165,000円
(7,845円/坪)
-
- れんが橋
- 金山駅 徒歩3分
37.01坪
569,954円
(15,400円/坪)
-
















