名駅児玉
この物件ページを、113人の人が閲覧してます。
名古屋駅徒歩圏
ワンフロアタイプのオフィスビル
- 物件ID009581
- お気に入り
物件詳細
| 所在地 | 愛知県名古屋市中村区名駅4-2-5 | 最寄り駅 |
|
|---|---|---|---|
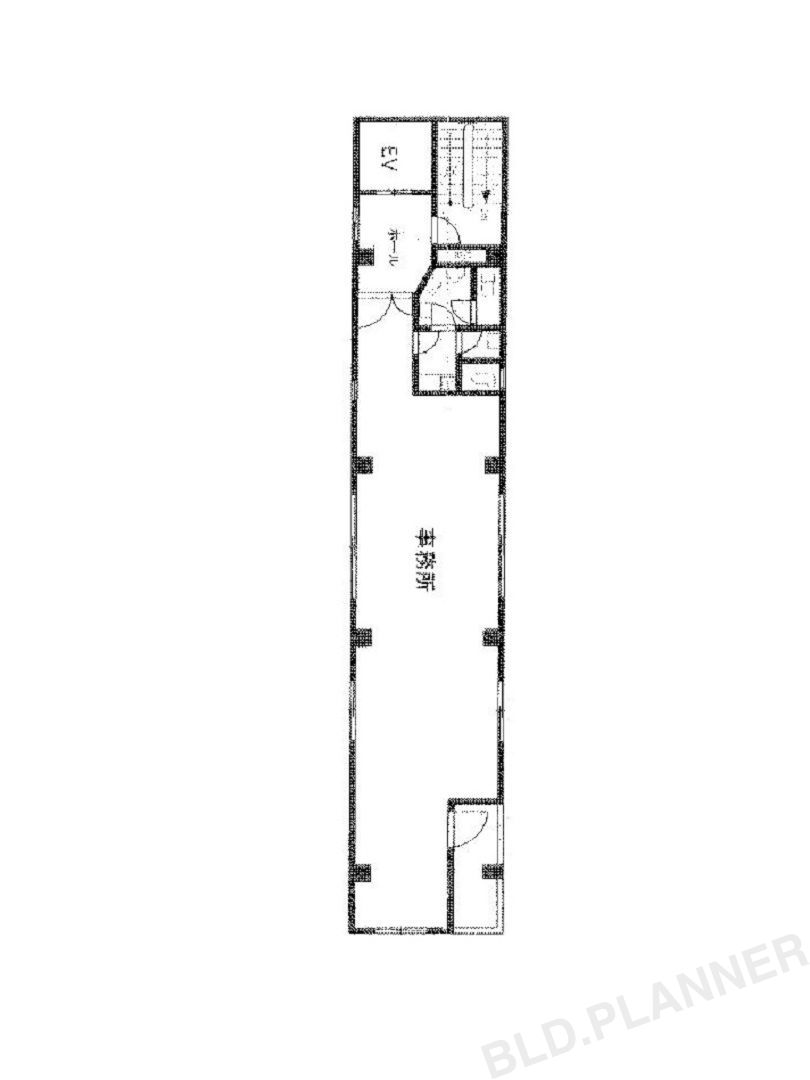
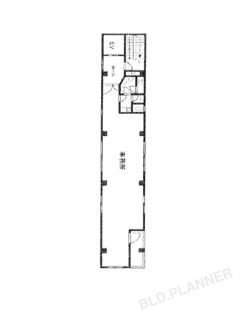
| 階/号室 | 5階 | 竣工 | 1992年02月 |
| 面積 | 26.96坪 | 保証金/敷金 | 2,700,000円(10ヶ月 ) |
| 賃料 | 297,000円(11,016円/坪) | 共益費 | 29,700円(1,101円/坪) |
| 礼金 | なし | 償却 | 30% |
| 入居 | 相談 | 設備 | 個別空調 EV |
| 所在地 | 愛知県名古屋市中村区名駅4-2-5 |
|---|---|
| 最寄り駅 |
|
| 階/号室 | 5階 |
| 竣工 | 1992年02月 |
| 面積 | 26.96坪 |
| 保証金/敷金 | 2,700,000円(10ヶ月 ) |
| 賃料 | 297,000円(11,016円/坪) |
| 共益費 | 29,700円(1,101円/坪) |
| 礼金 | なし |
| 償却 | 30% |
| 入居 | 相談 |
| 設備 | 個別空調 EV |
(2026年05月12日時点の情報です)
- 内観図、設備等は現状優先となります。
- 賃貸条件の詳細は重要事項説明書をもってご説明致します。
- 物件によっては別途費用がかかる場合がございます。
- ご紹介致しました物件にて契約が成立した場合、仲介手数料として賃料の1ヶ月分を申し受けます。
この物件についてお問い合わせ
メールでのお問い合わせ
このページは確認画面です。
内容をご確認のうえ、「送信する」ボタンを押してください。
- お問い合わせありがとうございました。
-
ご入力いただいたメールアドレスに、自動送信メールをお送りいたしましたのでご確認ください。
もし自動送信メールが届いていない場合は、何らかの不具合の可能性がございます。
大変お手数ですが、お電話にてご連絡ください。
株式会社ビルプランナー
【本社】
〒460-0002 名古屋市中区丸の内2丁目18番14号
TEL:052-218-4555 FAX:052-218-4556
- 似た条件の人気物件
-
-
- Kinjiro名駅Minamiビル
- 名鉄名古屋駅 徒歩8分
183.31坪
相談
-
- LOGIPORT NAGOYA A棟
- 八田駅 徒歩8分
33.15坪
相談
-
- 明治安田生命名古屋駅前
- 名鉄名古屋駅 徒歩4分
169.66坪
相談
-
- ノースゲート名駅
- 亀島駅 徒歩1分
35.22坪
572,000円
(16,242円/坪)
-
















