ストーク久屋
この物件ページを、84人の人が閲覧してます。
東区泉エリア。大通り面する好立地。1フロア1テナントで便利に使える物件。
- 物件ID074623
- お気に入り
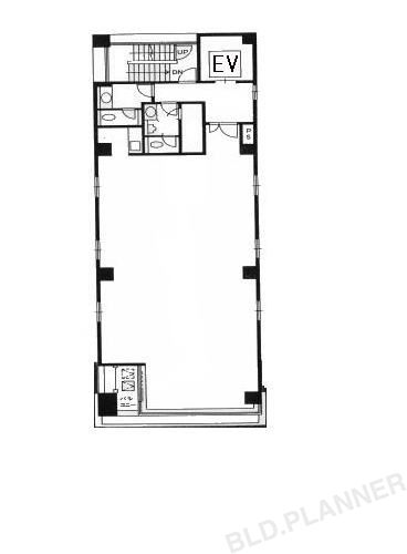
物件詳細
| 所在地 | 愛知県名古屋市東区泉1-22-29 | 最寄り駅 |
|
|---|---|---|---|
| 階/号室 | 5階 | 竣工 | 1993年09月 |
| 面積 | 37.50坪 | 保証金/敷金 | 4,125,000円(10ヶ月 ) |
| 賃料 | 453,750円(12,100円/坪) | 共益費 | 込 |
| 礼金 | なし | 償却 | 0-2 30%、2-4 20%、4-6 10% |
| 入居 | 2026年06月~ | 設備 | 個別空調 EV OA |
| 所在地 | 愛知県名古屋市東区泉1-22-29 |
|---|---|
| 最寄り駅 |
|
| 階/号室 | 5階 |
| 竣工 | 1993年09月 |
| 面積 | 37.50坪 |
| 保証金/敷金 | 4,125,000円(10ヶ月 ) |
| 賃料 | 453,750円(12,100円/坪) |
| 共益費 | 込 |
| 礼金 | なし |
| 償却 | 0-2 30%、2-4 20%、4-6 10% |
| 入居 | 2026年06月~ |
| 設備 | 個別空調 EV OA |
(2026年03月11日時点の情報です)
- 内観図、設備等は現状優先となります。
- 賃貸条件の詳細は重要事項説明書をもってご説明致します。
- 物件によっては別途費用がかかる場合がございます。
- ご紹介致しました物件にて契約が成立した場合、仲介手数料として賃料の1ヶ月分を申し受けます。
この物件についてお問い合わせ
メールでのお問い合わせ
このページは確認画面です。
内容をご確認のうえ、「送信する」ボタンを押してください。
- お問い合わせありがとうございました。
-
ご入力いただいたメールアドレスに、自動送信メールをお送りいたしましたのでご確認ください。
もし自動送信メールが届いていない場合は、何らかの不具合の可能性がございます。
大変お手数ですが、お電話にてご連絡ください。
株式会社ビルプランナー
【本社】
〒460-0002 名古屋市中区丸の内2丁目18番14号
TEL:052-218-4555 FAX:052-218-4556
- 似た条件の人気物件
-
-
- パークスクエア
- 栄町駅 徒歩5分
19.00坪
209,000円
(11,000円/坪)
-
- IB・SPOT
- 久屋大通駅 徒歩2分
4.69坪
78,100円
(16,656円/坪)
-
- 神谷BLD(旧ユーゼット)
- 高岳駅 徒歩3分
16.23坪
121,000円
(7,456円/坪)
-
- サンニシキ
- 森下駅 徒歩6分
9.40坪
70,400円
(7,489円/坪)
-
















