CK15伏見
この物件ページを、91人の人が閲覧してます。
伏見エリア。伏見駅すぐ、大通り沿いの好立地。1フロア1テナントで便利に使えます。
- 物件ID033943
- お気に入り
物件詳細
| 所在地 | 愛知県名古屋市中区錦2-17-28 | 最寄り駅 |
|
|---|---|---|---|
| 階/号室 | 7階 | 竣工 | 2001年12月 |
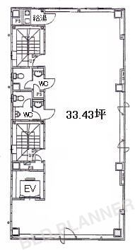
| 面積 | 33.37坪 | 保証金/敷金 | 3,470,480円(8ヶ月 ) |
| 賃料 | 477,191円(14,300円/坪) | 共益費 | 込 |
| 礼金 | なし | 償却 | -2 20%、2-5 10%、5- 0% |
| 入居 | 2026年08月~ | 設備 | 個別空調 EV OA セキュリティ |
| 所在地 | 愛知県名古屋市中区錦2-17-28 |
|---|---|
| 最寄り駅 |
|
| 階/号室 | 7階 |
| 竣工 | 2001年12月 |
| 面積 | 33.37坪 |
| 保証金/敷金 | 3,470,480円(8ヶ月 ) |
| 賃料 | 477,191円(14,300円/坪) |
| 共益費 | 込 |
| 礼金 | なし |
| 償却 | -2 20%、2-5 10%、5- 0% |
| 入居 | 2026年08月~ |
| 設備 | 個別空調 EV OA セキュリティ |
(2026年03月06日時点の情報です)
- 内観図、設備等は現状優先となります。
- 賃貸条件の詳細は重要事項説明書をもってご説明致します。
- 物件によっては別途費用がかかる場合がございます。
- ご紹介致しました物件にて契約が成立した場合、仲介手数料として賃料の1ヶ月分を申し受けます。
この物件についてお問い合わせ
メールでのお問い合わせ
このページは確認画面です。
内容をご確認のうえ、「送信する」ボタンを押してください。
- お問い合わせありがとうございました。
-
ご入力いただいたメールアドレスに、自動送信メールをお送りいたしましたのでご確認ください。
もし自動送信メールが届いていない場合は、何らかの不具合の可能性がございます。
大変お手数ですが、お電話にてご連絡ください。
株式会社ビルプランナー
【本社】
〒460-0002 名古屋市中区丸の内2丁目18番14号
TEL:052-218-4555 FAX:052-218-4556
- 似た条件の人気物件
-
-
- 伊勢町平和(セットアップオフィス)
- 栄駅 徒歩6分
21.92坪
482,240円
(22,000円/坪)
-
- 千代田五丁目一棟貸し
- 鶴舞駅 徒歩4分
90.71坪
770,000円
(8,488円/坪)
-
- RT白川(旧白川別館)
- 伏見駅 徒歩6分
52.22坪
相談
-
- 錦中央
- 久屋大通駅 徒歩2分
36.53坪
522,379円
(14,300円/坪)
-
















