木村
この物件ページを、68人の人が閲覧してます。
- 物件ID169558
- お気に入り
物件詳細
| 所在地 | 愛知県名古屋市昭和区広見町5-54 | 最寄り駅 |
|
|---|---|---|---|
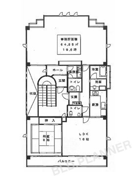
| 階/号室 | 2階 | 竣工 | 1991年 |
| 面積 | 41.19坪 | 保証金/敷金 | 540,000円(2ヶ月 ) |
| 賃料 | 270,000円(6,556円/坪) | 共益費 | 込 |
| 礼金 | なし | 償却 | 1ヶ月 |
| 入居 | 即入居 | 設備 |
| 所在地 | 愛知県名古屋市昭和区広見町5-54 |
|---|---|
| 最寄り駅 |
|
| 階/号室 | 2階 |
| 竣工 | 1991年 |
| 面積 | 41.19坪 |
| 保証金/敷金 | 540,000円(2ヶ月 ) |
| 賃料 | 270,000円(6,556円/坪) |
| 共益費 | 込 |
| 礼金 | なし |
| 償却 | 1ヶ月 |
| 入居 | 即入居 |
| 設備 |
(2026年02月24日時点の情報です)
- 内観図、設備等は現状優先となります。
- 賃貸条件の詳細は重要事項説明書をもってご説明致します。
- 物件によっては別途費用がかかる場合がございます。
- ご紹介致しました物件にて契約が成立した場合、仲介手数料として賃料の1ヶ月分を申し受けます。
この物件についてお問い合わせ
メールでのお問い合わせ
このページは確認画面です。
内容をご確認のうえ、「送信する」ボタンを押してください。
- お問い合わせありがとうございました。
-
ご入力いただいたメールアドレスに、自動送信メールをお送りいたしましたのでご確認ください。
もし自動送信メールが届いていない場合は、何らかの不具合の可能性がございます。
大変お手数ですが、お電話にてご連絡ください。
株式会社ビルプランナー
【本社】
〒460-0002 名古屋市中区丸の内2丁目18番14号
TEL:052-218-4555 FAX:052-218-4556




















