DPスクエア東桜(旧DNI東桜)
この物件ページを、66人の人が閲覧してます。
東区エリア。大通り面し、高速インターも近い好立地。ガラス張りの綺麗な外観と高級感あるエントランスのハイグレードオフィスビル。
- 物件ID153626
- お気に入り
物件詳細
| 所在地 | 愛知県名古屋市東区東桜1-14-11 | 最寄り駅 |
|
|---|---|---|---|
| 階/号室 | 8階 | 竣工 | 2008年06月 |
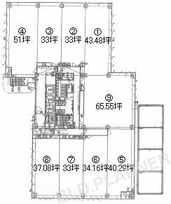
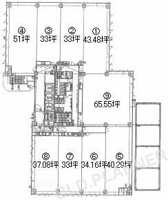
| 面積 | 65.55坪 | 保証金/敷金 | 相談 |
| 賃料 | 相談 | 共益費 | 込 |
| 礼金 | なし | 償却 | 0% |
| 入居 | 2026年06月~ | 設備 | 個別空調 EV OA セキュリティ |
| 所在地 | 愛知県名古屋市東区東桜1-14-11 |
|---|---|
| 最寄り駅 |
|
| 階/号室 | 8階 |
| 竣工 | 2008年06月 |
| 面積 | 65.55坪 |
| 保証金/敷金 | 相談 |
| 賃料 | 相談 |
| 共益費 | 込 |
| 礼金 | なし |
| 償却 | 0% |
| 入居 | 2026年06月~ |
| 設備 | 個別空調 EV OA セキュリティ |
(2026年05月21日時点の情報です)
- 内観図、設備等は現状優先となります。
- 賃貸条件の詳細は重要事項説明書をもってご説明致します。
- 物件によっては別途費用がかかる場合がございます。
- ご紹介致しました物件にて契約が成立した場合、仲介手数料として賃料の1ヶ月分を申し受けます。
この物件についてお問い合わせ
メールでのお問い合わせ
このページは確認画面です。
内容をご確認のうえ、「送信する」ボタンを押してください。
- お問い合わせありがとうございました。
-
ご入力いただいたメールアドレスに、自動送信メールをお送りいたしましたのでご確認ください。
もし自動送信メールが届いていない場合は、何らかの不具合の可能性がございます。
大変お手数ですが、お電話にてご連絡ください。
株式会社ビルプランナー
【本社】
〒460-0002 名古屋市中区丸の内2丁目18番14号
TEL:052-218-4555 FAX:052-218-4556
- 似た条件の人気物件
-
-
- 御堂
- 高岳駅 徒歩11分
26.81坪
222,200円
(8,288円/坪)
-
- ハセガワ(HASEGAWA)
- 久屋大通駅 徒歩3分
93.78坪
1,287,000円
(13,723円/坪)
-
- サンエース徳川
- 尼ヶ坂駅 徒歩9分
23.14坪
216,359円
(9,350円/坪)
-
- ユニーブル新栄*
- 新栄町駅 徒歩4分
12.00坪
59,400円
(4,950円/坪)
-
















