葉山
この物件ページを、49人の人が閲覧してます。
- 物件ID141291
- お気に入り
物件詳細
| 所在地 | 愛知県豊橋市駅前大通92 | 最寄り駅 |
|
|---|---|---|---|
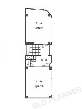
| 階/号室 | 2階/A | 竣工 | 1980年01月 |
| 面積 | 12.07坪 | 保証金/敷金 | 330,000円(3ヶ月 ) |
| 賃料 | 110,000円(9,116円/坪) | 共益費 | 込 |
| 礼金 | 220,000円(2ヶ月 ) | 償却 | |
| 入居 | 即入居 | 設備 |
| 所在地 | 愛知県豊橋市駅前大通92 |
|---|---|
| 最寄り駅 |
|
| 階/号室 | 2階/A |
| 竣工 | 1980年01月 |
| 面積 | 12.07坪 |
| 保証金/敷金 | 330,000円(3ヶ月 ) |
| 賃料 | 110,000円(9,116円/坪) |
| 共益費 | 込 |
| 礼金 | 220,000円(2ヶ月 ) |
| 償却 | |
| 入居 | 即入居 |
| 設備 |
(2026年03月23日時点の情報です)
- 内観図、設備等は現状優先となります。
- 賃貸条件の詳細は重要事項説明書をもってご説明致します。
- 物件によっては別途費用がかかる場合がございます。
- ご紹介致しました物件にて契約が成立した場合、仲介手数料として賃料の1ヶ月分を申し受けます。
この物件についてお問い合わせ
メールでのお問い合わせ
このページは確認画面です。
内容をご確認のうえ、「送信する」ボタンを押してください。
- お問い合わせありがとうございました。
-
ご入力いただいたメールアドレスに、自動送信メールをお送りいたしましたのでご確認ください。
もし自動送信メールが届いていない場合は、何らかの不具合の可能性がございます。
大変お手数ですが、お電話にてご連絡ください。
株式会社ビルプランナー
【本社】
〒460-0002 名古屋市中区丸の内2丁目18番14号
TEL:052-218-4555 FAX:052-218-4556
- 似た条件の人気物件
-
-
- 豊橋フロント
- 新川駅 徒歩2分
71.46坪
786,060円
(11,000円/坪)
-
- たまご
- 駅前駅 徒歩9分
18.89坪
102,001円
(5,401円/坪)
-
- 豊橋イースト
- 新川駅 徒歩1分
14.87坪
57,249円
(3,850円/坪)
-
- タワーレジデンスアネックス・2
- 新川駅 徒歩7分
23.63坪
191,180円
(8,090円/坪)
-
















