セプトン丸の内
この物件ページを、86人の人が閲覧してます。
丸の内エリア。ガラス張りの綺麗な外観。官庁近く、士業等におすすめのオフィスビル。
- 物件ID013779
- お気に入り
物件詳細
| 所在地 | 愛知県名古屋市中区丸の内3-13-1 | 最寄り駅 |
|
|---|---|---|---|
| 階/号室 | 4階/B北 | 竣工 | 1993年08月 |
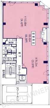
| 面積 | 23.97坪 | 保証金/敷金 | 相談 |
| 賃料 | 相談 | 共益費 | 79,101円(3,300円/坪) |
| 礼金 | なし | 償却 | 30% |
| 入居 | 2026年08月~ | 設備 | 個別空調 EV OA セキュリティ |
| 所在地 | 愛知県名古屋市中区丸の内3-13-1 |
|---|---|
| 最寄り駅 |
|
| 階/号室 | 4階/B北 |
| 竣工 | 1993年08月 |
| 面積 | 23.97坪 |
| 保証金/敷金 | 相談 |
| 賃料 | 相談 |
| 共益費 | 79,101円(3,300円/坪) |
| 礼金 | なし |
| 償却 | 30% |
| 入居 | 2026年08月~ |
| 設備 | 個別空調 EV OA セキュリティ |
(2026年02月24日時点の情報です)
- 内観図、設備等は現状優先となります。
- 賃貸条件の詳細は重要事項説明書をもってご説明致します。
- 物件によっては別途費用がかかる場合がございます。
- ご紹介致しました物件にて契約が成立した場合、仲介手数料として賃料の1ヶ月分を申し受けます。
この物件についてお問い合わせ
メールでのお問い合わせ
このページは確認画面です。
内容をご確認のうえ、「送信する」ボタンを押してください。
- お問い合わせありがとうございました。
-
ご入力いただいたメールアドレスに、自動送信メールをお送りいたしましたのでご確認ください。
もし自動送信メールが届いていない場合は、何らかの不具合の可能性がございます。
大変お手数ですが、お電話にてご連絡ください。
株式会社ビルプランナー
【本社】
〒460-0002 名古屋市中区丸の内2丁目18番14号
TEL:052-218-4555 FAX:052-218-4556
- 似た条件の人気物件
-
-
- 辰晃(タツコウ)
- 栄駅 徒歩4分
36.98坪
732,184円
(19,800円/坪)
-
- リアライズ伏見(旧Akagiri Fushimi)
- 伏見駅 徒歩2分
39.02坪
547,250円
(14,025円/坪)
-
- SFP
- 伏見駅 徒歩6分
56.18坪
617,980円
(11,000円/坪)
-
- 名古屋シミズ富国生命
- 丸の内駅 徒歩3分
41.05坪
相談
-
















