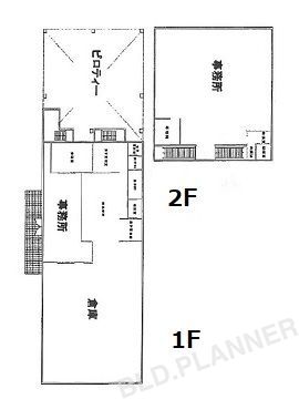
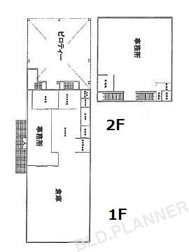
三河安城町貸事務所倉庫
この物件ページを、51人の人が閲覧してます。
JR三河安城駅に直結の好立地!
- 物件ID135493
- お気に入り
物件詳細
| 所在地 | 愛知県安城市三河安城町2-19-15 | 最寄り駅 |
|
|---|---|---|---|
| 階/号室 | 1階~2階 | 竣工 | 1998年12月 |
| 面積 | 257.92坪 | 保証金/敷金 | 6,600,000円(約4ヶ月 ) |
| 賃料 | 1,650,000円(6,397円/坪) | 共益費 | 込 |
| 礼金 | 1,650,000円(1ヶ月 ) | 償却 | |
| 入居 | 相談 | 設備 | セキュリティ |
| 所在地 | 愛知県安城市三河安城町2-19-15 |
|---|---|
| 最寄り駅 |
|
| 階/号室 | 1階~2階 |
| 竣工 | 1998年12月 |
| 面積 | 257.92坪 |
| 保証金/敷金 | 6,600,000円(約4ヶ月 ) |
| 賃料 | 1,650,000円(6,397円/坪) |
| 共益費 | 込 |
| 礼金 | 1,650,000円(1ヶ月 ) |
| 償却 | |
| 入居 | 相談 |
| 設備 | セキュリティ |
(2026年03月25日時点の情報です)
- 内観図、設備等は現状優先となります。
- 賃貸条件の詳細は重要事項説明書をもってご説明致します。
- 物件によっては別途費用がかかる場合がございます。
- ご紹介致しました物件にて契約が成立した場合、仲介手数料として賃料の1ヶ月分を申し受けます。
この物件についてお問い合わせ
メールでのお問い合わせ
このページは確認画面です。
内容をご確認のうえ、「送信する」ボタンを押してください。
- お問い合わせありがとうございました。
-
ご入力いただいたメールアドレスに、自動送信メールをお送りいたしましたのでご確認ください。
もし自動送信メールが届いていない場合は、何らかの不具合の可能性がございます。
大変お手数ですが、お電話にてご連絡ください。
株式会社ビルプランナー
【本社】
〒460-0002 名古屋市中区丸の内2丁目18番14号
TEL:052-218-4555 FAX:052-218-4556
- 似た条件の人気物件
-
-
- クサカ池浦
- 三河安城駅 徒歩13分
280.47坪
935,000円
(3,334円/坪)
-
- ツインパーク
- 三河安城駅 徒歩6分
50.24坪
607,860円
(12,100円/坪)
-
- 宇頭茶屋町貸事務所(うとうちゃやちょう)
- 新安城駅 徒歩23分
28.58坪
88,000円
(3,078円/坪)
-
- DENCITY CROSS SITE(オフィスフロア)
- 安城駅 徒歩6分
29.37坪
468,600円
(15,955円/坪)
-
















