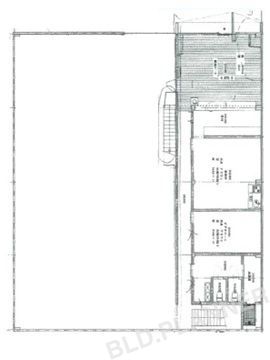
東刈谷一丁目店舗
この物件ページを、61人の人が閲覧してます。
- 物件ID106813
- お気に入り
物件詳細
| 所在地 | 愛知県刈谷市東刈谷町1-9-6 | 最寄り駅 |
|
|---|---|---|---|
| 階/号室 | 1階 | 竣工 | 1994年08月 |
| 面積 | 124.17坪 | 保証金/敷金 | 2,970,000円(約3ヶ月 ) |
| 賃料 | 990,000円(7,972円/坪) | 共益費 | 込 |
| 礼金 | 990,000円(1ヶ月 ) | 償却 | 0 |
| 入居 | 相談 | 設備 |
| 所在地 | 愛知県刈谷市東刈谷町1-9-6 |
|---|---|
| 最寄り駅 |
|
| 階/号室 | 1階 |
| 竣工 | 1994年08月 |
| 面積 | 124.17坪 |
| 保証金/敷金 | 2,970,000円(約3ヶ月 ) |
| 賃料 | 990,000円(7,972円/坪) |
| 共益費 | 込 |
| 礼金 | 990,000円(1ヶ月 ) |
| 償却 | 0 |
| 入居 | 相談 |
| 設備 |
(2026年03月25日時点の情報です)
- 内観図、設備等は現状優先となります。
- 賃貸条件の詳細は重要事項説明書をもってご説明致します。
- 物件によっては別途費用がかかる場合がございます。
- ご紹介致しました物件にて契約が成立した場合、仲介手数料として賃料の1ヶ月分を申し受けます。
この物件についてお問い合わせ
メールでのお問い合わせ
このページは確認画面です。
内容をご確認のうえ、「送信する」ボタンを押してください。
- お問い合わせありがとうございました。
-
ご入力いただいたメールアドレスに、自動送信メールをお送りいたしましたのでご確認ください。
もし自動送信メールが届いていない場合は、何らかの不具合の可能性がございます。
大変お手数ですが、お電話にてご連絡ください。
株式会社ビルプランナー
【本社】
〒460-0002 名古屋市中区丸の内2丁目18番14号
TEL:052-218-4555 FAX:052-218-4556




















